restaurante corrutela
2018
São Paulo

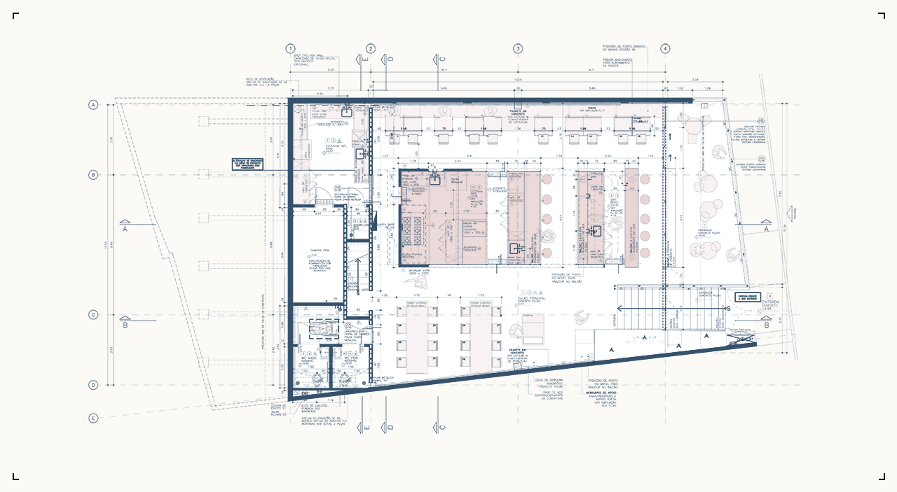
Um galpão com uma grande cobertura coincidente à ascensão do terreno. Para o projeto, uma quebra desta nova cobertura metálica é feita em sua parte superior, um sheed de iluminação natural do restaurante, e base para uma plataforma técnica dos maquinários necessários.

Preservou-se, portanto, esta característica do grande galpão, a sobriedade dos acabamentos e a proeminência da inclinação do telhado. Todas as áreas de apoio, cozinha de preparo, estoques, banheiros, vestiários, escritório se concentraram e um volume posterior em dois pavimentos: castelo servidor oculto por alvenarias estruturais e arrimo de concreto de contenção e escalonamento do terreno original. Solto no galpão principal, junto às mesas e locais de refeição uma única peça configura as áreas principais de operação do restaurante, bar e cozinha de finalização.

×

×
×

×

×
×

Em estrutura metálica, fechamentos em chapas ou alvenarias, este volume responde as suas funções, revela seu funcionamento, concentra as instalações do salão, e cria as dinâmicas de fluxo e as ambiências do salão do restaurante. Uma máquina no espaço, aberta a visitação e a convivência.

×

×

×

×
×

×

×
×

×

×

×

×


ficha técnica:

projeto: Restaurante Corrutela
localização: Vila Madalena, São Paulo, SP
ano do projeto: 2018
ano da obra: 2019
area construída: 295m²
autores: Rodrigo Ferreira Oliveira, Thomas Frenk, Fabrizio Lenci, Fabio Riff
colaboradores: Fernanda Zotovici, Bruno Lopes
complementares: estrutural – 2M projetos / instalações – Ramoska e Castellani / exaustão e refrigeração – MLC serviços / luminotecnico – MD estúdio / cozinha industrial – Alfatec
fotos: Pedro Napolitano Prata